絶景を眺める岩風呂でくつろぐ♪リゾートハウス(白樺台10)|素泊

絶景を眺める岩風呂でくつろぐ♪リゾートハウス(白樺台10)|素泊
絶景を眺める岩風呂でくつろぐ♪リゾートハウス(白樺台10)|素泊
絶景を眺める岩風呂でくつろぐ♪リゾートハウス(白樺台10)|素泊
絶景を眺める岩風呂でくつろぐ♪リゾートハウス(白樺台10)|素泊

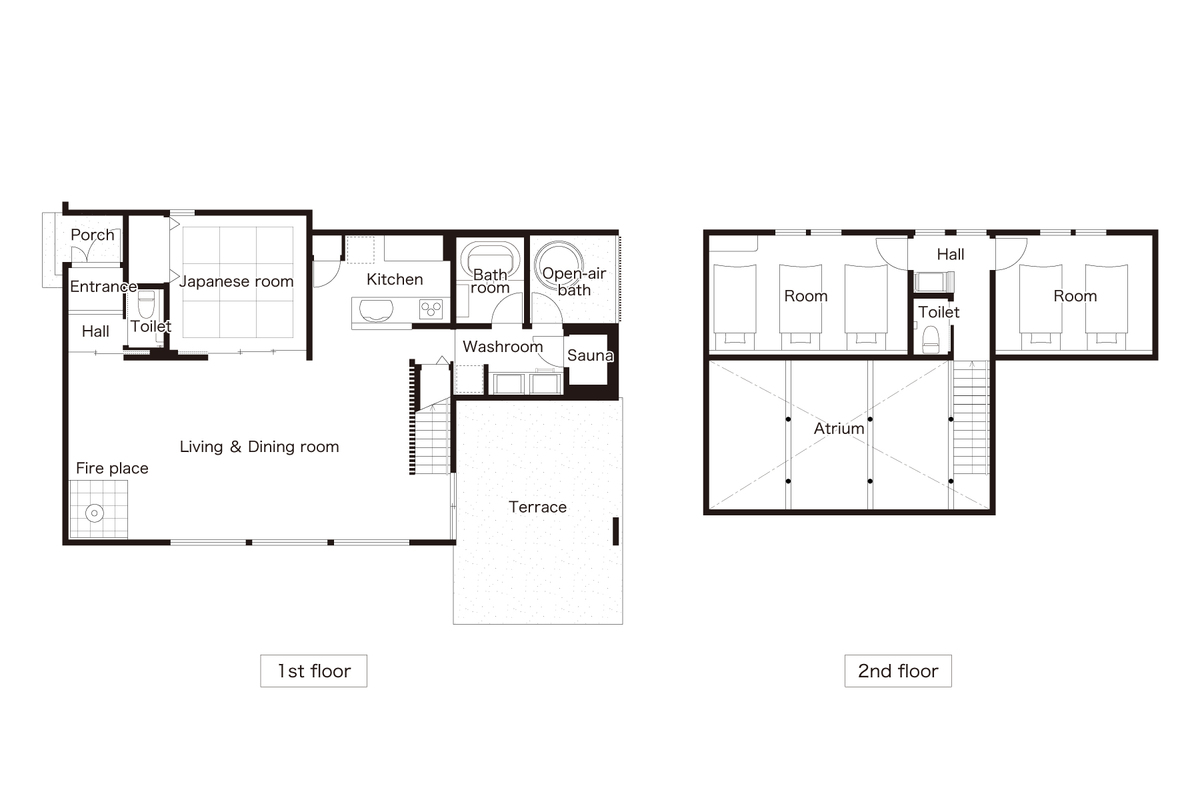
お部屋について

那須高原の雄大な自然を眺ながらくつろぐ迫力満点のお風呂が魅力♪
3LDKの広々とした間取りは、グループや3世代でのご利用に最適です。
※こちらの別荘はBBQの利用が出来ません。BBQ器具のお持ち込みもお控えください。

※最大10名様まで宿泊可能です。
7名以上の場合、6名でご予約いただき、予約時の備考欄に追加人数を記載していただきます。

基本情報

  • 広さ 166平米
  • 定員 6名 (最大10名)
    ※最大人数を超えての利用はできかねます。
  • 寝具 ベッド1台 布団7組
  • 移動 車移動(徒歩不可)
  • 無料Wifi
  • ペット 不可
  • 喫煙/禁煙 全室禁煙
  • 駐車場 2台(乗用車)
    ※超過分はフロント付近の駐車場をご利用ください。
  • イン 16:00
  • アウト 10:00

※チェックインのお手続きは7:00~ご利用可能です。那須ハイランドパークの入園無料チケット(乗り放題チケットは別途料金頂戴します)、りんどう湖ファミリー牧場の入園無料チケット、NOZARU利用割引等の各種特典は、チェックイン手続きの際にお渡しいたします。

※入園無料などのご宿泊特典は、チェックイン日の朝から、チェックアウト日の午後まで(滞在期間は終日いつでも何度でも)ご利用可能です。

【届け出番号】第 M090026658号

室内設備

  • トイレ
  • 浴室
  • エアコン
  • ドライヤー
  • テレビ
  • 暖炉 (薪ストーブ)

※エアコンは設置しておりません。夏季は扇風機、冬季はヒーターをご利用ください

キッチン設備

冷蔵庫 / 炊飯器/ 電子レンジ / 電気ケトル(ポット) / 定員人数分食器(平皿プレート・深皿プレート・お茶碗) / グラス / コーヒーカップ / カトラリー<箸・フォークなど>・栓抜き/ フライパン24cm1個 / 片手鍋18cm1個 / 包丁・まな板1セット / 食器用洗剤 / キッチンペーパー / 食器用スポンジ

※追加の調理器具のお貸出しはございません。足りないものがございましたら、各自ご用意ください
※調味料はございません(一部調味料はフロント売店にて販売しております)
※「大型BBQグリル付き」のタグが付いている客室には、BBQ機材の備え付けがございます。(別途注文は必要ございません)

アメニティ

シャンプー / リンス / ボディソープ / 歯ブラシ / フェイスタオル / バスタオル
※浴衣、部屋着はございませんので各自ご用意ください
※剃刀、ヘアブラシをご希望の方はフロントでお受け取りください

ハウスルール

■チェックイン/チェックアウトのお手続きについて
TOWAピュアコテージフロントにて承ります

■火気について
花火、キャンドル、焚火などの火気使用は禁止です(館内、庭、道路など屋外を含む)
室内/別荘敷地内は禁煙です
所定の喫煙場所をご利用ください
※こちらの別荘はBBQの利用が出来ません。BBQ器具のお持ち込みもお控えください。

■騒音について 

22時以降は屋外での歓談・BBQなどはお控えください

■清掃について 

清掃料金は含まれておりますが、使用状況により、別途費用をご請求させていただく場合がございます ご連泊の場合もお部屋の清掃は致しません。アメニティの追加/交換はフロントにてお渡しいたします。

■ペット【同伴禁止】

 ペット同伴は禁止です ペット同伴可能な客室は以下よりご選択ください 

https://www.pure-cottages.jp/withpets

万一、ハウスルールやご利用規約を遵守いただけず設備/備品に問題が生じた場合は修繕/補償に掛かる費用を申し受けます

よく見られているお部屋

  • 【プライベート露天風呂付き】開放的な露天風呂と広々テラス♪リゾートハウス(あけぼの平70)
    【プライベート露天風呂付き】開放的な露天風呂と広々テラス♪リゾートハウス(あけぼの平70)
    【プライベート露天風呂付き】開放的な露天風呂と広々テラス♪リゾートハウス(あけぼの平70)
    【プライベート露天風呂付き】開放的な露天風呂と広々テラス♪リゾートハウス(あけぼの平70)

    【プライベート露天風呂付き】開放的な露天風呂と広々テラス♪リゾートハウス(あけぼの平70)

    • 平屋
    • テラスに屋根あり
    • 露天風呂
    定員  5名

    素泊

    詳細

    1泊2食付 【お部屋食】

    詳細
    プランをすべて見る(3)

    1泊2食付

    詳細
  • 子どもが喜ぶ庭と、大人が寛ぐテラスのある別荘/リゾートハウス(赤松平7-6, 7-7)
    子どもが喜ぶ庭と、大人が寛ぐテラスのある別荘/リゾートハウス(赤松平7-6, 7-7)
    子どもが喜ぶ庭と、大人が寛ぐテラスのある別荘/リゾートハウス(赤松平7-6, 7-7)
    子どもが喜ぶ庭と、大人が寛ぐテラスのある別荘/リゾートハウス(赤松平7-6, 7-7)

    子どもが喜ぶ庭と、大人が寛ぐテラスのある別荘/リゾートハウス(赤松平7-6, 7-7)

    • 築浅
    • 平屋
    • 暖炉使用可
    • テラスに屋根あり
    • 寝室3部屋以上
    • Wi-Fi
    定員  5名(最大8名)

    素泊

    詳細

    1泊2食付 【お部屋食】

    詳細
  • 森の恵みを感じる本格ログハウス♪リゾートハウス(もみじヶ丘46)
    森の恵みを感じる本格ログハウス♪リゾートハウス(もみじヶ丘46)
    森の恵みを感じる本格ログハウス♪リゾートハウス(もみじヶ丘46)
    森の恵みを感じる本格ログハウス♪リゾートハウス(もみじヶ丘46)

    森の恵みを感じる本格ログハウス♪リゾートハウス(もみじヶ丘46)

    • 寝室3部屋以上
    • ログハウス
    定員  6名(最大8名)

    素泊

    詳細

    1泊2食

    詳細
    プランをすべて見る(3)

    1泊2食付 【お部屋食】

    詳細
合計金額 税込 00,000