【温泉大浴場入り放題♪】THE TRAIL CABIN SORA|1泊2食付【和洋食ビュッフェ】

【温泉大浴場入り放題♪】THE TRAIL CABIN SORA|1泊2食付【和洋食ビュッフェ】
【温泉大浴場入り放題♪】THE TRAIL CABIN SORA|1泊2食付【和洋食ビュッフェ】
【温泉大浴場入り放題♪】THE TRAIL CABIN SORA|1泊2食付【和洋食ビュッフェ】
【温泉大浴場入り放題♪】THE TRAIL CABIN SORA|1泊2食付【和洋食ビュッフェ】

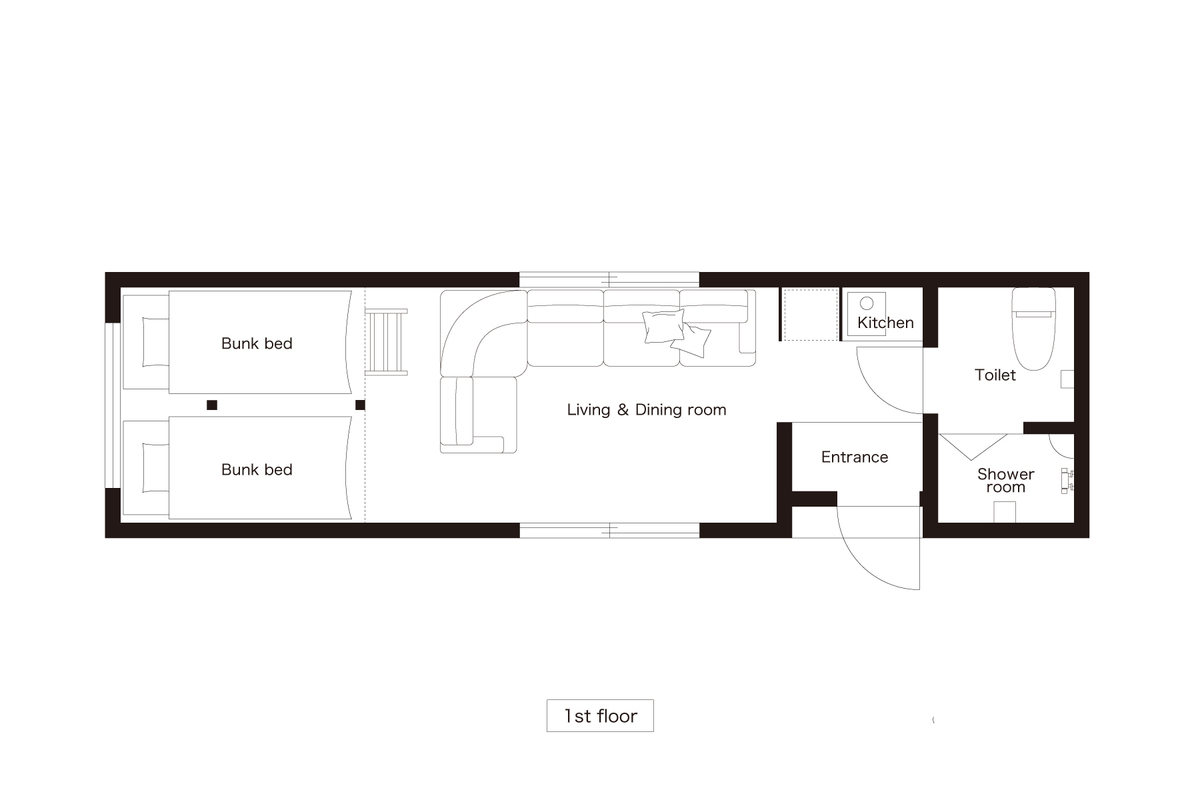
お部屋について

[2026年3月OPEN]
人気のトレーラー型のお部屋が新登場!

基本情報

  • 広さ 24平米
  • 定員 4名
  • 寝具 布団4組
  • 移動 フロントから徒歩圏内
  • 無料Wifi
  • ペット 不可
  • 喫煙/禁煙 全室禁煙
  • 駐車場 1台(乗用車)
    ※超過分はフロント付近の駐車場をご利用ください。
  • イン 16:00
  • アウト 10:00

強風、暴風はじめ、施設側が危険と判断した場合、宿泊先から一時避難または別の客室へ変更をお願いする場合がございます。

室内設備

  • トイレ
  • 浴室
  • エアコン
  • ドライヤー
  • テレビ
  • 暖炉 (薪ストーブ)

お部屋の定員について

3歳以上のお子様から定員にカウントされます。
定員を上回る人数でご予約をされた場合、お部屋の変更またはお断りさせていただくことがございます。

お子様の宿泊/食事料金について


0~2歳:無料(添い寝のため、寝具・布団のご用意はございません。)
3歳~小学生:ご宿泊代無料(※1)、お食事代無料(※2)

【※1泊2食付プランにおけるご注意事項】
(※1)3歳以上、小学生以下の子供の人数が、大人の人数を超える場合、お子様1名につき大人料金の70%相当金額を別途追加頂戴しております。

(例)大人2名、小学生3名のご宿泊の場合
大人2名の料金:サイト表記の通り
小学生2名の料金:無料
小学生1名の料金(大人の人数を超える方):大人料金の70%相当金額を追加で現地にてご精算
 
(※2)食べ放題メニューは無料(BBQ・しゃぶしゃぶ)。一部メニューは有料となります。

【注意事項】
ご予約時にサイト上で表示されている金額には、(※1)(※2)の追加料金は含まれておりませんのでご注意ください。


■お子様のお食事料金について(1泊2食付き、または素泊りにお食事を追加される場合)
・朝食バイキング:無料
・しゃぶしゃぶ:無料
・BBQ食べ放題:無料
・和洋ビュッフェ(夕食):無料
・お部屋食: 3-5歳・小学生:¥3,300

※3歳未満のお客様は定員に含まれないため、食材・寝具のご用意はございません。
※全て税込表記
※お子様のお食事料金は現地でのご精算

和洋食ビュッフェについて

営業時間:17:00~20:00
※時期により営業時間は異なります
お食事時間はチェックイン時に先着順でご予約いただきます。

ステーキからうどんまで、和洋さまざまなメニューを取り揃えたビュッフェ形式のお食事をご用意しております。お好みに合わせて、幅広いお料理をお楽しみください。

また、天候に恵まれた日にはテラス席にて、那須高原の夜景を眺めながらお食事をお楽しみいただけます。
(※一部の客席につきましては、悪天候時にはご利用いただけない場合がございます。)

https://www.pure-cottages.jp/m...

ご選択頂いたメニューが満席の場合はご予約を承れないお日にちもございます。予めご了承ください。
※当日のお食事内容の変更は承ることができません。ご了承ください。
※予約後にメニューを変更される場合は、前日までにお電話にてご連絡ください。
※ご連泊のお客様で2泊目以降の食事をご希望の場合は別質問または備考欄に合わせてご記入ください。

キッチン設備

ミニ冷蔵庫 / 電気ケトル(ポット) / 紙コップ人数分

アメニティ

歯ブラシ / フェイスタオル / バスタオル 
※剃刀、ヘアブラシをご希望の方はフロントでお受け取りください

送迎バスのご利用について

無料送迎バスをご利用の方は予約後に届くマイページ内の「モバイルオーダー」から予約をお願いいたします

■[発]那須塩原駅→[着]TOWAピュアコテージ
11:00/14:45/17:00
■[発]TOWAピュアコテージ→[着]那須塩原駅
10:00/13:45/16:00

よく見られているお部屋

  • 日本初!透明なグランピング”AURA”(アウラ)
    日本初!透明なグランピング”AURA”(アウラ)
    日本初!透明なグランピング”AURA”(アウラ)
    日本初!透明なグランピング”AURA”(アウラ)

    日本初!透明なグランピング”AURA”(アウラ)

    • フロント徒歩圏内
    定員  4名

    那須ハイ乗り放題券付!|1泊2食付

    詳細

    1泊2食付【BBQレストラン】

    詳細
    プランをすべて見る(4)

    1泊2食付【和洋食ビュッフェ】

    詳細

    【那須ハイ乗り放題チケット付き】1泊2食付【BBQレストラン】

    詳細
  • 日本初!透明なグランピング"AURA5.0"
    日本初!透明なグランピング"AURA5.0"
    日本初!透明なグランピング"AURA5.0"
    日本初!透明なグランピング"AURA5.0"

    日本初!透明なグランピング"AURA5.0"

    • フロント徒歩圏内
    定員  3名

    那須ハイ乗り放題券付!|1泊2食付

    詳細

    1泊2食付【BBQレストラン】

    詳細
    プランをすべて見る(4)

    1泊2食付【和洋食ビュッフェ】

    詳細

    【那須ハイ乗り放題チケット付き】1泊2食付【BBQレストラン】

    詳細
  • 日本初!透明なグランピング”AURA premium”
    日本初!透明なグランピング”AURA premium”
    日本初!透明なグランピング”AURA premium”
    日本初!透明なグランピング”AURA premium”

    日本初!透明なグランピング”AURA premium”

    • フロント徒歩圏内
    定員  4名

    那須ハイ乗り放題券付!|1泊2食付

    詳細

    1泊2食付|お部屋食BBQプラン

    詳細
    プランをすべて見る(5)

    1泊2食付【BBQレストラン】

    詳細

    1泊2食付【和洋食ビュッフェ】

    詳細

    【那須ハイ乗り放題チケット付き】1泊2食付【BBQレストラン】

    詳細
合計金額 税込 00,000